
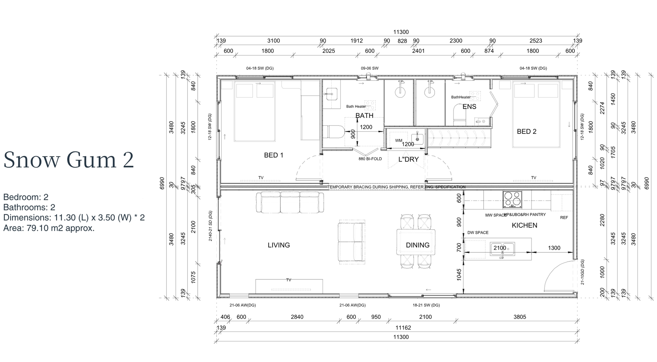
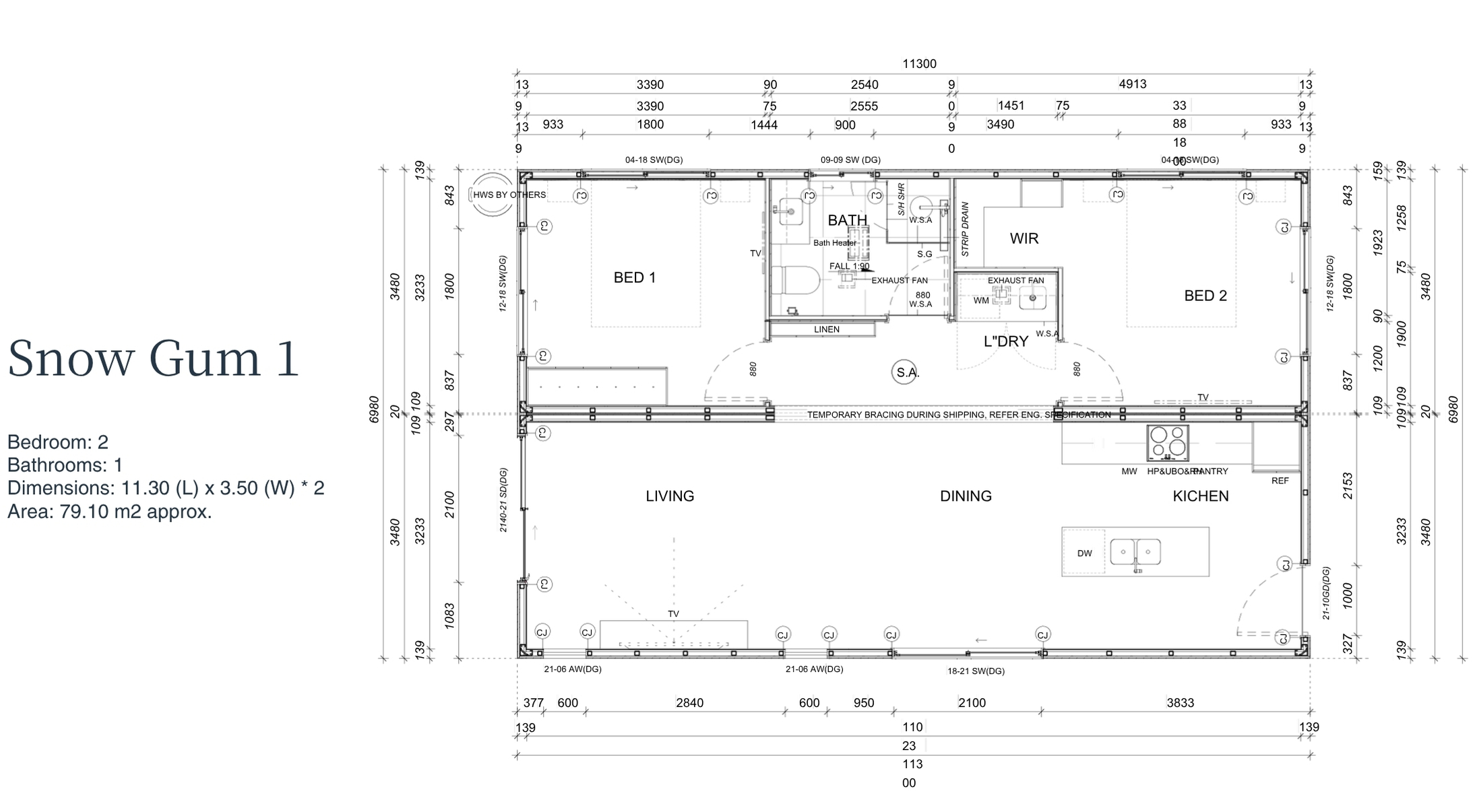
A well-designed two bedroom home offering comfortable living across 79.10 m². With a practical layout and well-proportioned spaces, the Snow Gum range balances simplicity, efficiency, and everyday comfort. Available with the option of a private ensuite to the master bedroom, it suits couples, small families, owner-occupiers, or those seeking a functional long-term living solution.

6.9m

11.30m

2.4m

79.10 m2
1 or 2
4
1
1
View upcoming open home dates and plan your visit today.
View Open DaysNo hidden costs. Your quote covers everything from design to installation.
Stage-based payment plans that work with your budget.
Because Knest homes are permanent residences, they qualify for standard bankfinance.
Eligible for government grants in approved states to help you get started sooner
High-quality homes, delivered faster, at a more competitive price than traditional builds.
Take advantage of stamp duty concessions where available, making your homemore affordable.
Get in touch with our team through our online form.
.jpg)