.jpg)
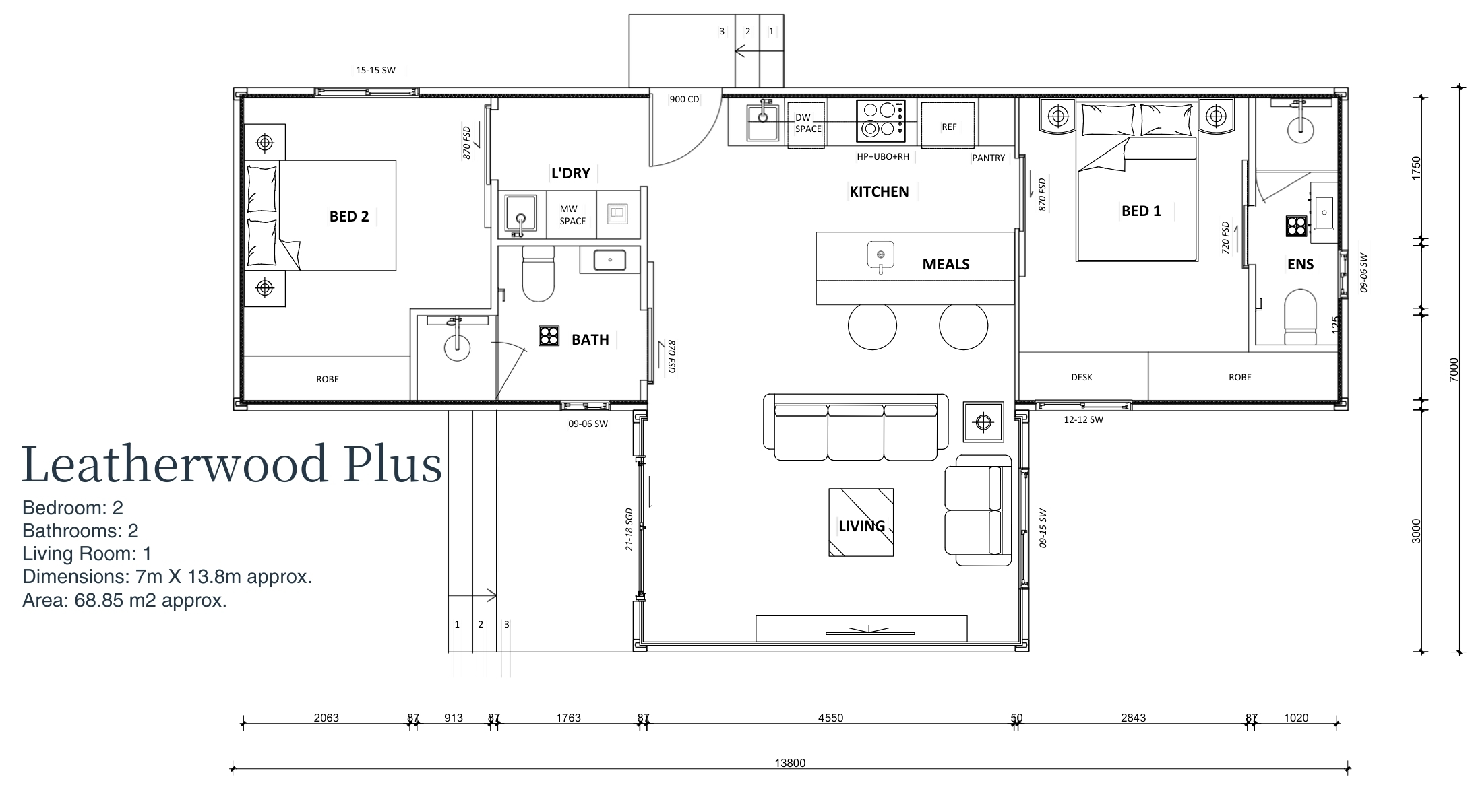
The Leatherwood Plus builds on the Leatherwood design with a more generous 68.85 m² layout. This 2 bedroom, 2 bathroom modular home offers enhanced space while maintaining the same thoughtful flow between private retreats and open plan living.
Designed for couples or small families, the Leatherwood Plus features Knest’s trusted quality, compliance and durability, delivering a modern lifestyle with extra room to breathe.

13.8m

7m

2.4m

68.85 m²
2
2
1
1
View upcoming open home dates and plan your visit today.
View Open DaysNo hidden costs. Your quote covers everything from design to installation.
Stage-based payment plans that work with your budget.
Because Knest homes are permanent residences, they qualify for standard bankfinance.
Eligible for government grants in approved states to help you get started sooner
High-quality homes, delivered faster, at a more competitive price than traditional builds.
Take advantage of stamp duty concessions where available, making your homemore affordable.
Get in touch with our team through our online form.
.jpg)