.jpg)
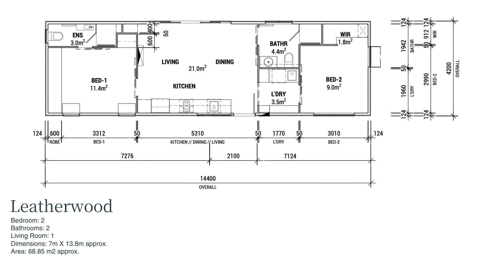
The Leatherwood is a thoughtfully designed 2 bedroom, 2 bathroom modular home with a 60.48 m² layout. Slightly more compact with a different internal arrangement than the Leatherwood Plus, it is ideal for couples or small families seeking a smart balance of private spaces and open plan living.
Finished with Knest’s signature quality materials and built as a compliant, durable permanent home, the Leatherwood delivers modern living without compromise.

4.2m

14.4m

2.4m

60.48m²
2
2
1
1
View upcoming open home dates and plan your visit today.
View Open DaysNo hidden costs. Your quote covers everything from design to installation.
Stage-based payment plans that work with your budget.
Because Knest homes are permanent residences, they qualify for standard bankfinance.
Eligible for government grants in approved states to help you get started sooner
High-quality homes, delivered faster, at a more competitive price than traditional builds.
Take advantage of stamp duty concessions where available, making your homemore affordable.
Get in touch with our team through our online form.
.jpg)