.jpg)
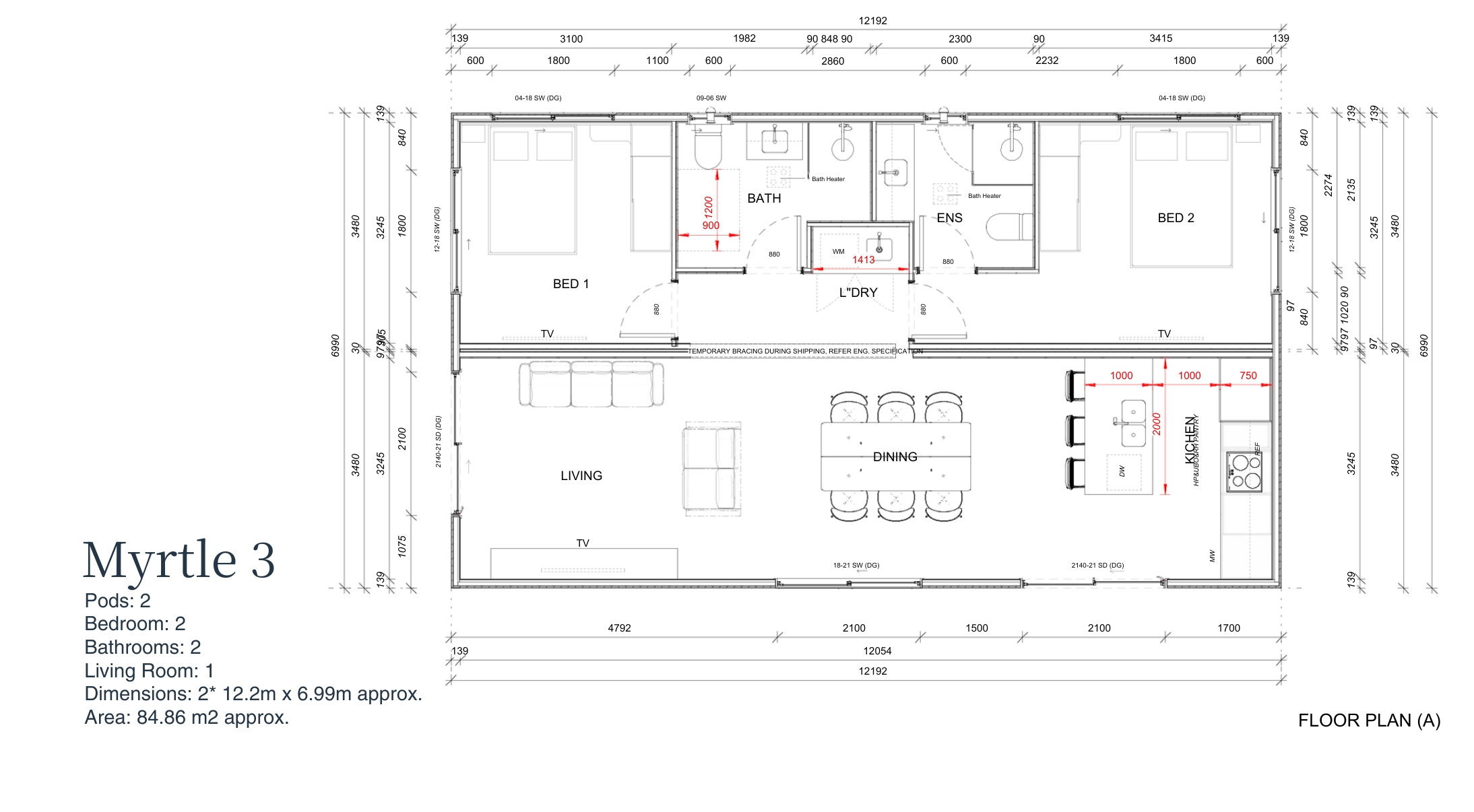
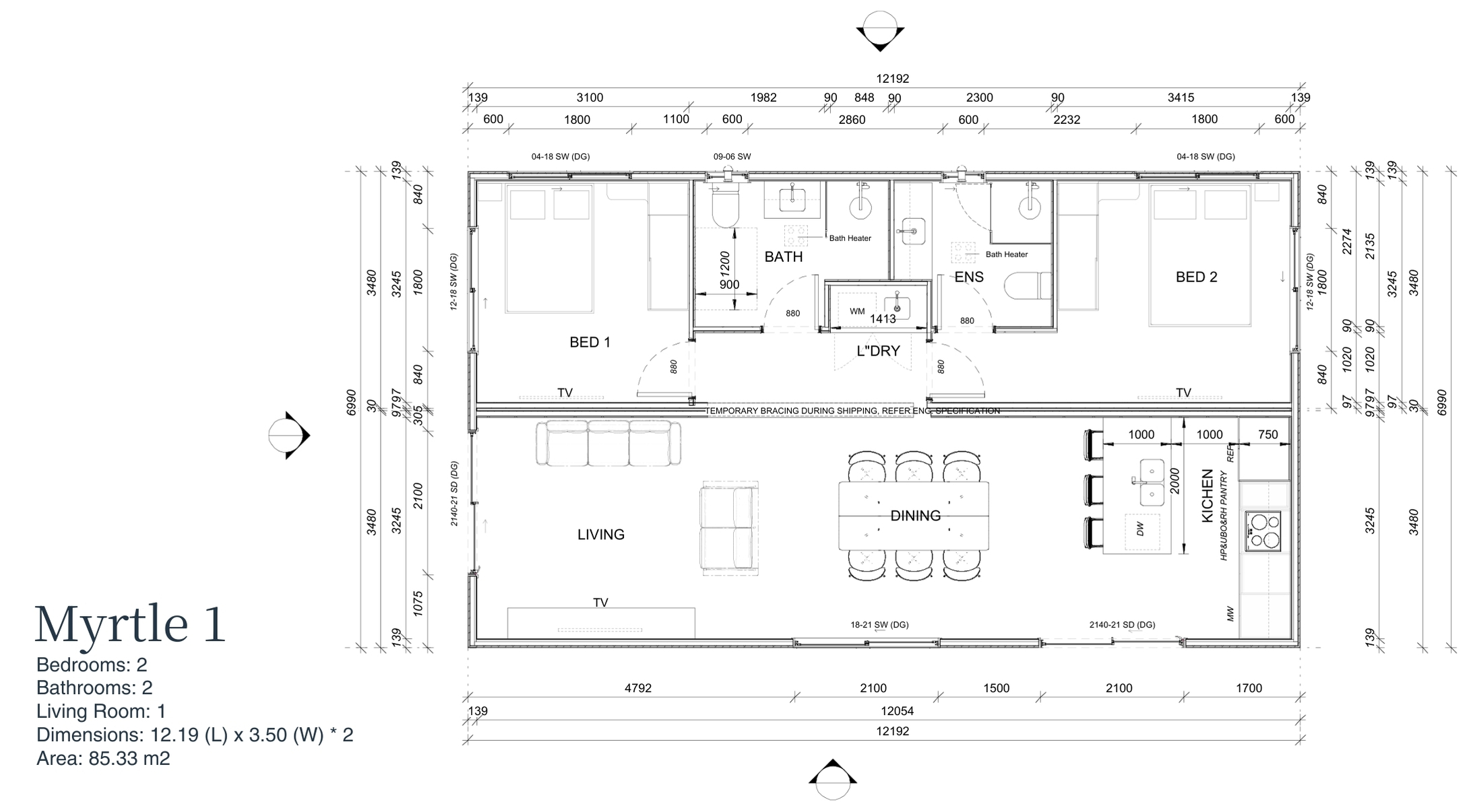
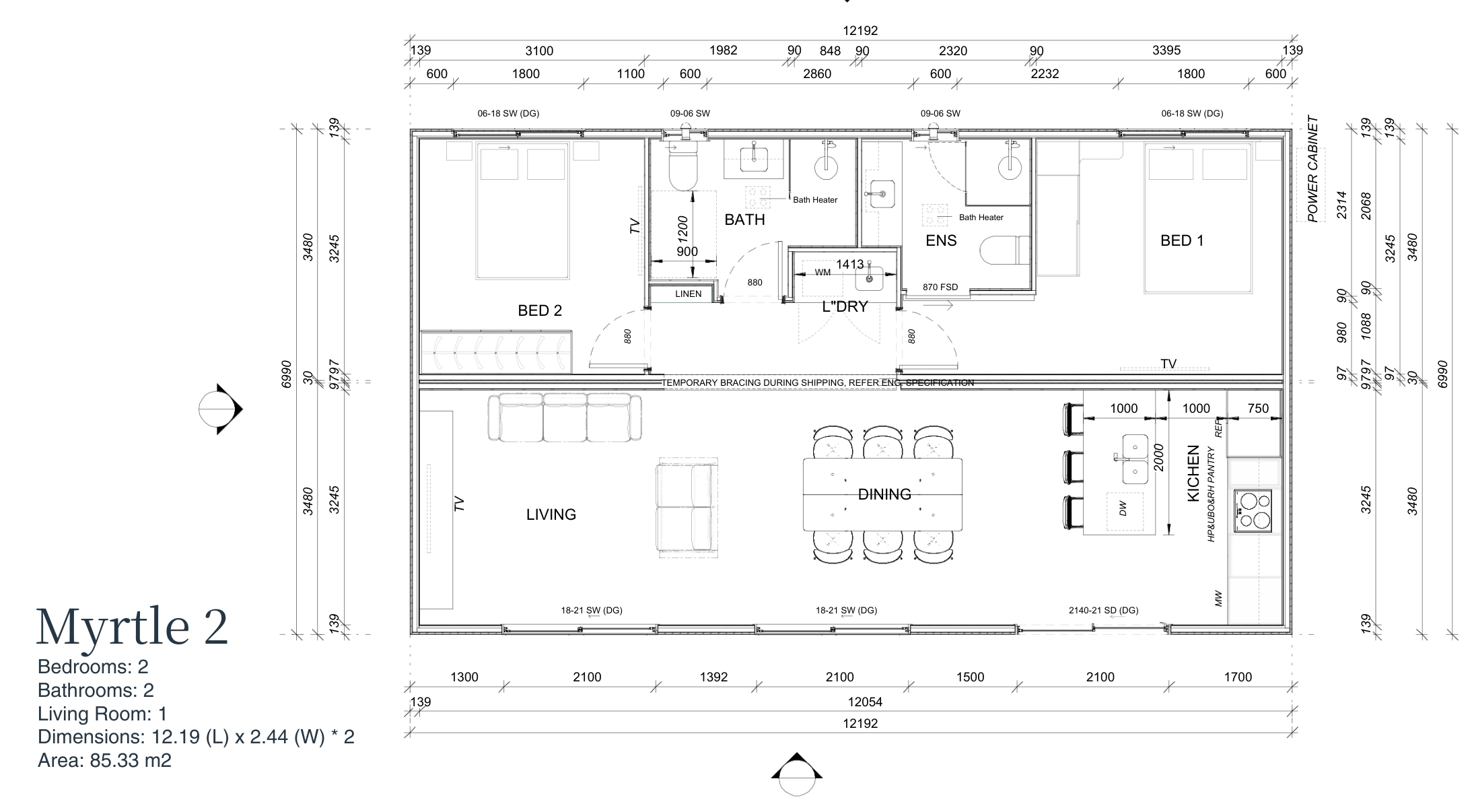
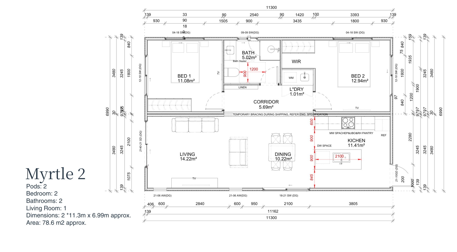
The Myrtle is a versatile 2 bedroom, 1 bathroom modular home offering plenty of space across 78.6m² (11.3m x 6.99m, 2 pods). With a smart layout that balances open living areas and private bedrooms, it’s ideal for couples, small families, or as a stylish secondary dwelling.
Built with Knest’s signature quality and compliance, the Myrtle is a modern home that feels generous, comfortable, and built to last.

11.3m or 12.2m

6.99m

2.4m

78.65m² or 84.86 m²
1
2
1
View upcoming open home dates and plan your visit today.
View Open DaysNo hidden costs. Your quote covers everything from design to installation.
Stage-based payment plans that work with your budget.
Because Knest homes are permanent residences, they qualify for standard bankfinance.
Eligible for government grants in approved states to help you get started sooner
High-quality homes, delivered faster, at a more competitive price than traditional builds.
Take advantage of stamp duty concessions where available, making your homemore affordable.
Get in touch with our team through our online form.
.jpg)