
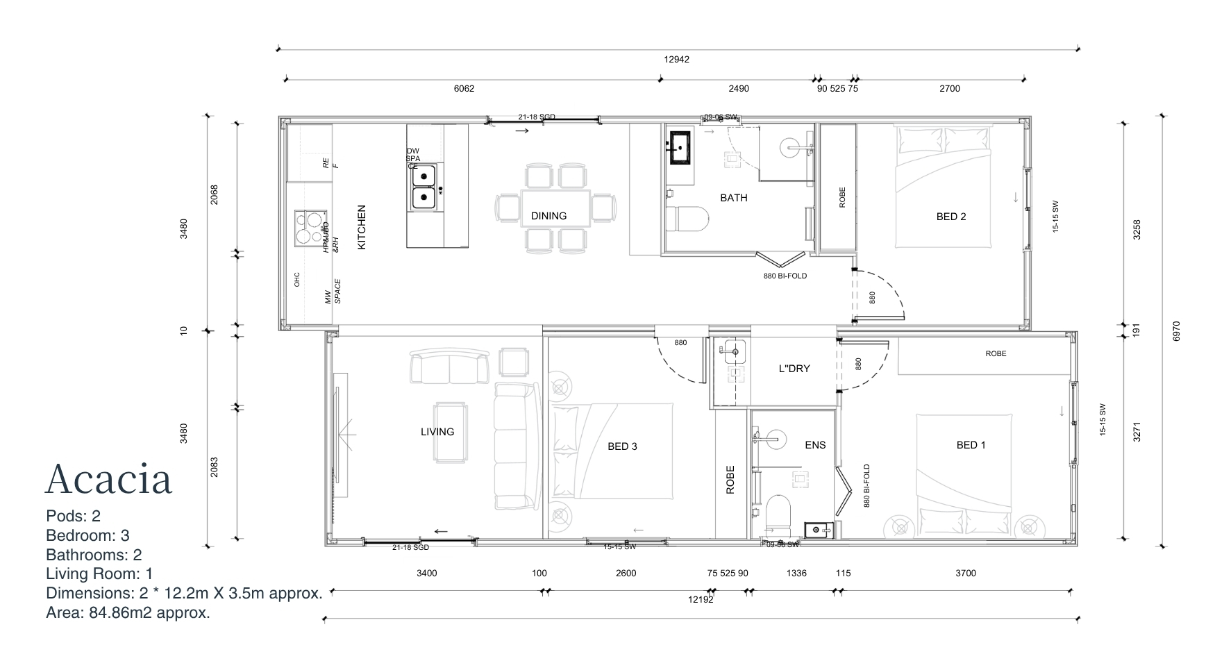
The Acacia offers a generous 3 bedroom, 2 bathroom, 1 living layout, giving families the space they need to live and grow. At 82.9m² (12.2m x 3.4m x 2 modules), it combines smart design with modern comfort, creating a home that feels both open and practical.
Perfect as a family home or investment property, the Acacia delivers quality and livability in one complete package.

12.2 m

3.4 m

2.4m

82.91 m2
2
6
1
1
No hidden costs. Your quote covers everything from design to installation.
Stage-based payment plans that work with your budget.
Because Knest homes are permanent residences, they qualify for standard bankfinance.
Eligible for government grants in approved states to help you get started sooner
High-quality homes, delivered faster, at a more competitive price than traditional builds.
Take advantage of stamp duty concessions where available, making your homemore affordable.
.jpg)