
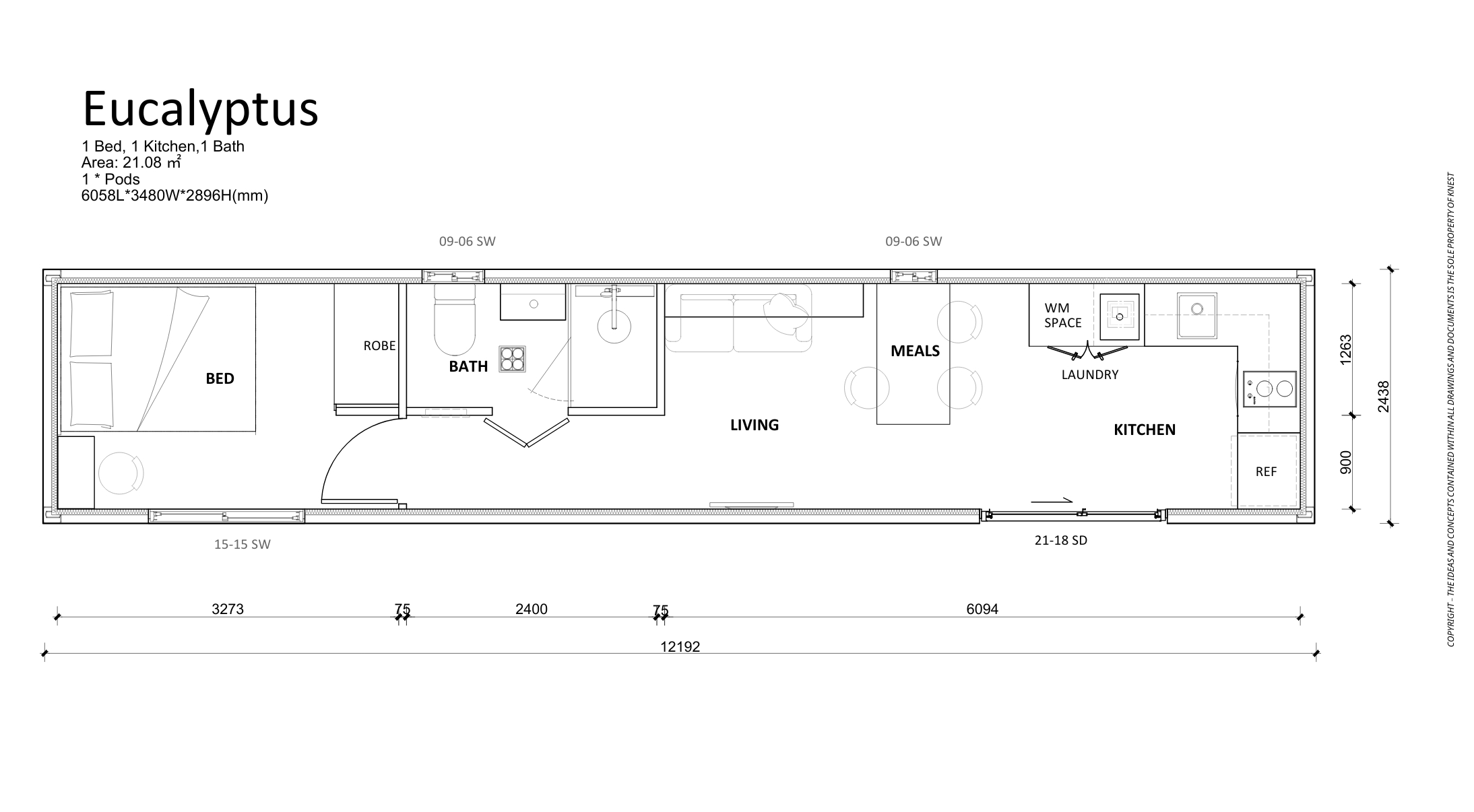
The Eucalyptus is one of our larger 1-bedroom modular homes, designed for comfortable and compact living without compromise. Perfect as a granny flat, guest retreat, or independent living space, it delivers practicality and style in every detail.
Personalise your Eucalyptus with smart upgrades, extend your kitchen with additional cabinetry and seating, or add an external deck for effortless outdoor entertaining.
Strong, compliant, and thoughtfully designed, the Eucalyptus offers a modern living solution that feels like home from day one.

12.2

2.4

2.4m

29.52m²
1
2
1
No hidden costs. Your quote covers everything from design to installation.
Stage-based payment plans that work with your budget.
Because Knest homes are permanent residences, they qualify for standard bankfinance.
Eligible for government grants in approved states to help you get started sooner
High-quality homes, delivered faster, at a more competitive price than traditional builds.
Take advantage of stamp duty concessions where available, making your homemore affordable.
.jpg)