
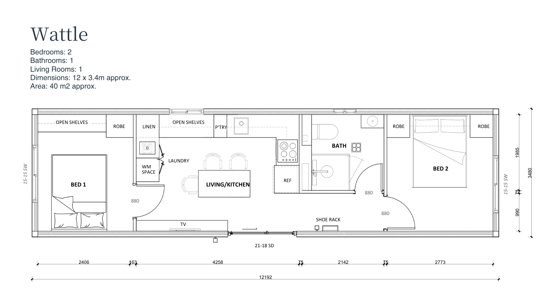
The Wattle is one of the most popular choices in our single-module range, offering the space and comfort of a full-sized home in a smart, efficient design. With 2 bedrooms, 1 bathroom, and a generous kitchen and living area, it’s perfect for small families, downsizers, or as an additional dwelling on your property.
Modern, compliant, and built with quality materials, the Wattle brings together style, functionality, and affordability, making it one of our most versatile modular home options.

12.2

3.4

2.4m

41.5
1 or 2
4
1
No hidden costs. Your quote covers everything from design to installation.
Stage-based payment plans that work with your budget.
Because Knest homes are permanent residences, they qualify for standard bankfinance.
Eligible for government grants in approved states to help you get started sooner
High-quality homes, delivered faster, at a more competitive price than traditional builds.
Take advantage of stamp duty concessions where available, making your homemore affordable.
.jpg)