
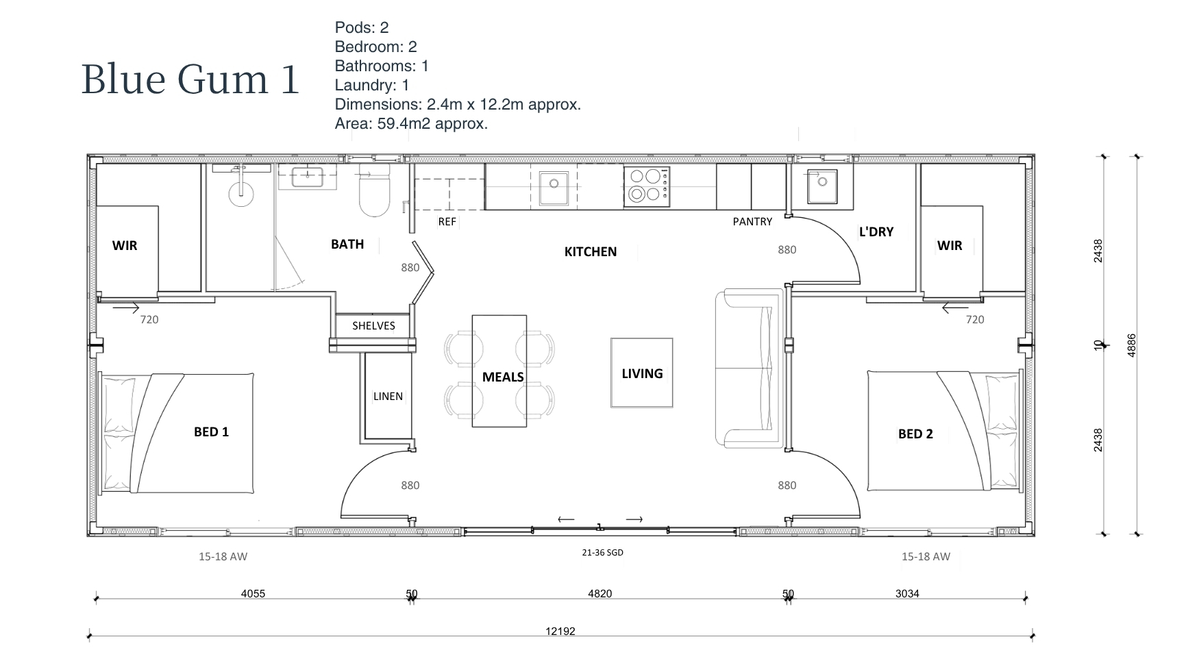
The Blue Gum 1 is a well-balanced 2 bedroom, 1 bathroom modular home featuring a dedicated laundry room for everyday convenience. At 59.4m² (2.4m x 12.2m x 2 modules), it’s designed to maximise space while keeping a practical, family-friendly layout.
Ideal for small families, couples, or as a secondary dwelling, the Blue Gum 1 offers high-quality modern living spaces in a smart and practical design.

12.2 m

2.4 m

2.4m

59.45m²
1
4
1
1
No hidden costs. Your quote covers everything from design to installation.
Stage-based payment plans that work with your budget.
Because Knest homes are permanent residences, they qualify for standard bankfinance.
Eligible for government grants in approved states to help you get started sooner
High-quality homes, delivered faster, at a more competitive price than traditional builds.
Take advantage of stamp duty concessions where available, making your homemore affordable.
.jpg)