
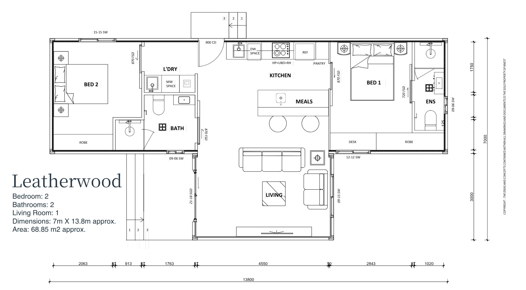
The Leatherwood is a thoughtfully designed 2 bedroom, 2 bathroom modular home with a generous 68.85m² layout. Perfect for couples or small families, it offers a balance of private retreats and open-plan living that makes everyday life comfortable and enjoyable.
With Knest’s signature quality materials, compliance, and durability, the Leatherwood delivers a modern lifestyle without compromise.

13.8m

7

2.4m

68.85 m²
2
4
1
1
No hidden costs. Your quote covers everything from design to installation.
Stage-based payment plans that work with your budget.
Because Knest homes are permanent residences, they qualify for standard bankfinance.
Eligible for government grants in approved states to help you get started sooner
High-quality homes, delivered faster, at a more competitive price than traditional builds.
Take advantage of stamp duty concessions where available, making your homemore affordable.
.jpg)