
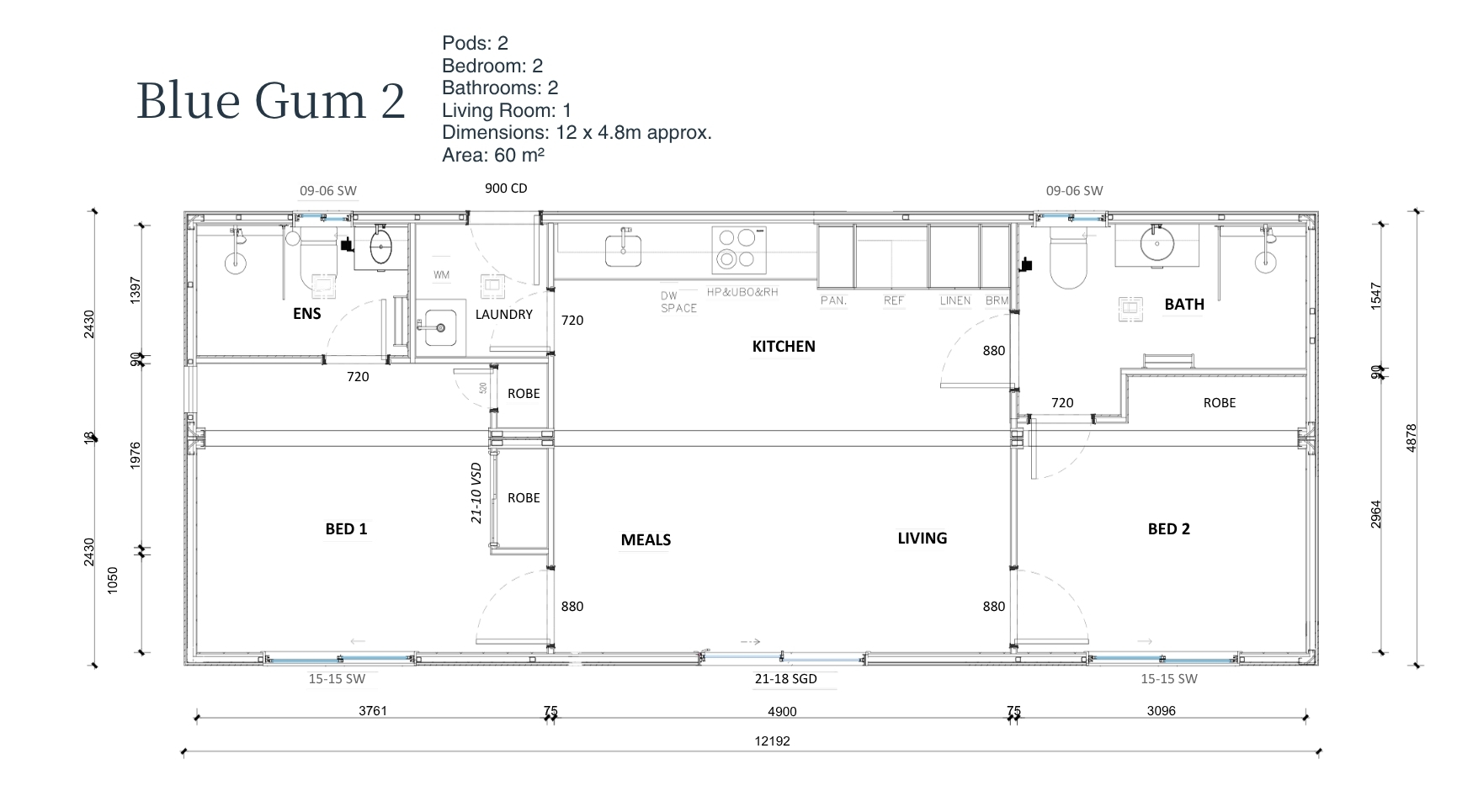
The Blue Gum 2 offers a well-designed 2 bedroom, 2 bathroom layout with a dedicated laundry room, making everyday living more practical and comfortable. At 59.4m² (2.4m x 12.2m x 2 modules), it provides the space you need while keeping a streamlined, efficient footprint.
Perfect for couples, small families, or as a secondary dwelling, the Blue Gum 2 combines modern comfort, practical living spaces, and Knest’s quality finishes.

12.2 m

4.88 m

2.4m

59.4m²
2
4
1
1
No hidden costs. Your quote covers everything from design to installation.
Stage-based payment plans that work with your budget.
Because Knest homes are permanent residences, they qualify for standard bankfinance.
Eligible for government grants in approved states to help you get started sooner
High-quality homes, delivered faster, at a more competitive price than traditional builds.
Take advantage of stamp duty concessions where available, making your homemore affordable.
.jpg)