
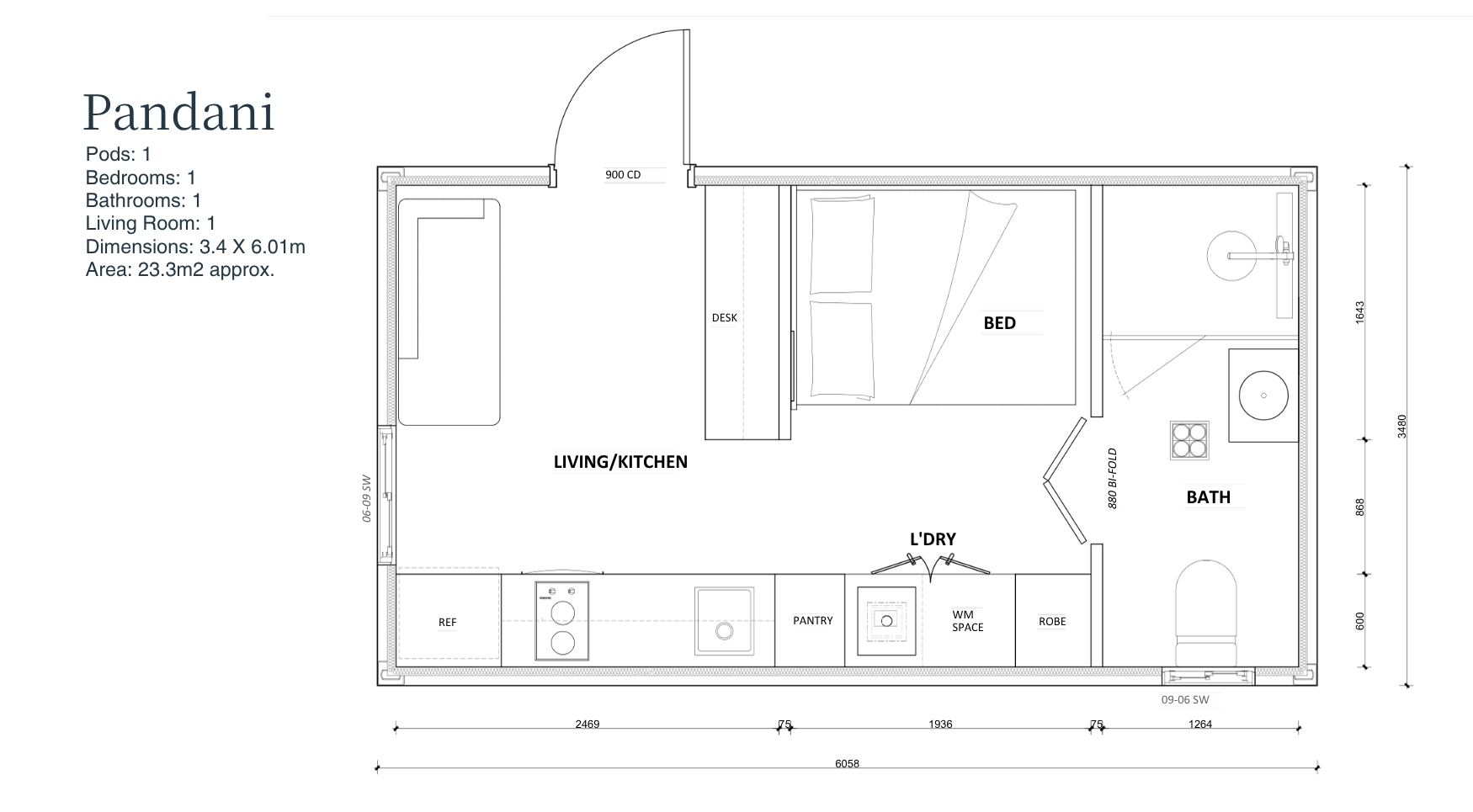
The Pandani is a thoughtfully designed 1 bedroom modular home that makes the most of its 23.3m² footprint (3.35m x 6.06m). Perfect as a guest suite, studio, or backyard retreat, it balances simplicity with modern comfort.
With quality finishes, full compliance, and smart design, the Pandani delivers an affordable way to add value and livability to any property.

6.058m

3.35m

2.4m

23.3m²
1
2
1
0
No hidden costs. Your quote covers everything from design to installation.
Stage-based payment plans that work with your budget.
Because Knest homes are permanent residences, they qualify for standard bankfinance.
Eligible for government grants in approved states to help you get started sooner
High-quality homes, delivered faster, at a more competitive price than traditional builds.
Take advantage of stamp duty concessions where available, making your homemore affordable.
.jpg)