
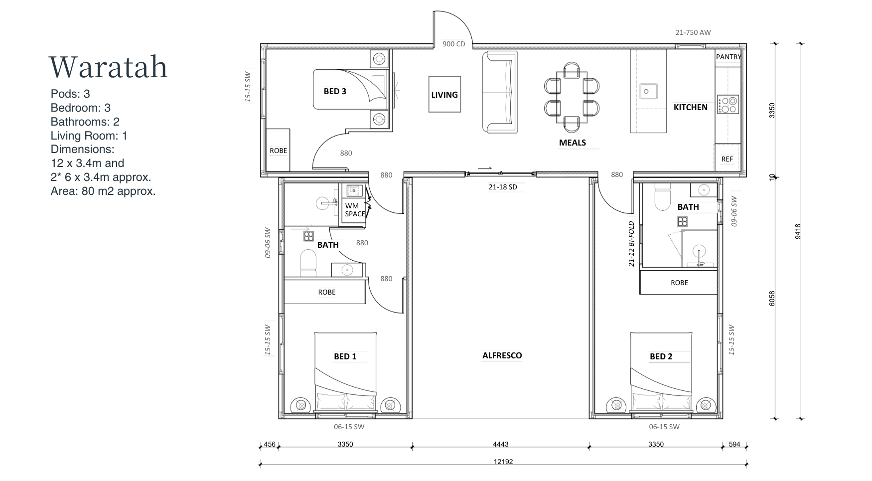
The Waratah is a standout in our modular range, offering a 3 bedroom, 2 bathroom layout designed with both privacy and connection in mind. Its impressive U-shaped floor plan creates natural separation between bedrooms while bringing everyone together in the large central living area.
Ideal for growing families or those who value space and functionality, the Waratah combines smart design with modern comfort in a home that feels truly complete.

12.192 m

9.418 m

2.4m

82.91m²
2
6
1
No hidden costs. Your quote covers everything from design to installation.
Stage-based payment plans that work with your budget.
Because Knest homes are permanent residences, they qualify for standard bankfinance.
Eligible for government grants in approved states to help you get started sooner
High-quality homes, delivered faster, at a more competitive price than traditional builds.
Take advantage of stamp duty concessions where available, making your homemore affordable.
.jpg)