
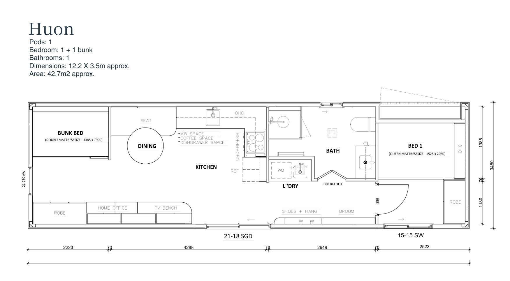
The Huon is a smart 1 bedroom + bunk room, 1 bathroom modular home, perfectly designed for small families, guests, or as a holiday retreat. At 42.7m² (12.2m x 3.5m), it makes the most of every metre, combining functionality with comfort in a compact footprint.
With thoughtful design and quality finishes, the Huon proves that great things really do come in small packages.

12.2 m

3.5 m

2.4m

42.7m²
1
4
1
No hidden costs. Your quote covers everything from design to installation.
Stage-based payment plans that work with your budget.
Because Knest homes are permanent residences, they qualify for standard bankfinance.
Eligible for government grants in approved states to help you get started sooner
High-quality homes, delivered faster, at a more competitive price than traditional builds.
Take advantage of stamp duty concessions where available, making your homemore affordable.
.jpg)