
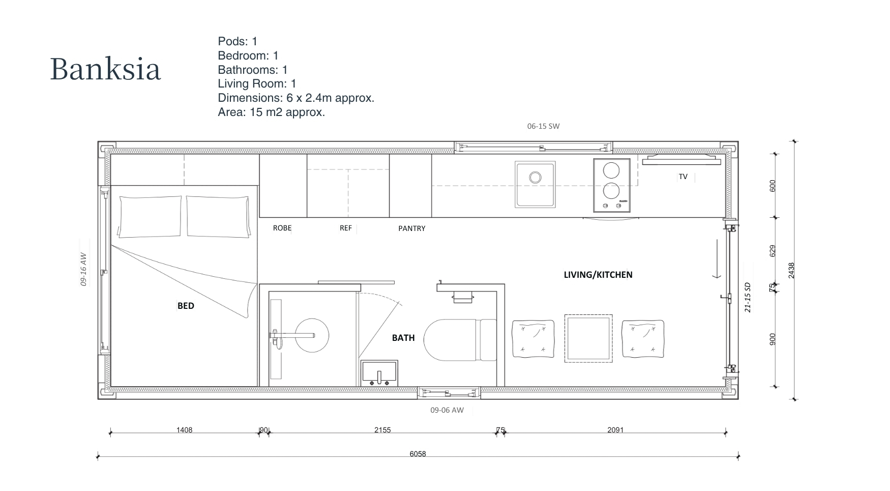
The Banksia is a streamlined 1 bedroom modular home designed for those who want a functional, low-maintenance living solution. At just 15m² (2.4m x 6m), it’s the smallest in the Knest range, making it ideal as a studio, guest pod, or backyard retreat.
With quality construction and full compliance, the Banksia makes that even the smallest of spaces feel like home

6m

2.4m

2.4m

15m²
1
2
1
No hidden costs. Your quote covers everything from design to installation.
Stage-based payment plans that work with your budget.
Because Knest homes are permanent residences, they qualify for standard bankfinance.
Eligible for government grants in approved states to help you get started sooner
High-quality homes, delivered faster, at a more competitive price than traditional builds.
Take advantage of stamp duty concessions where available, making your homemore affordable.
.jpg)