
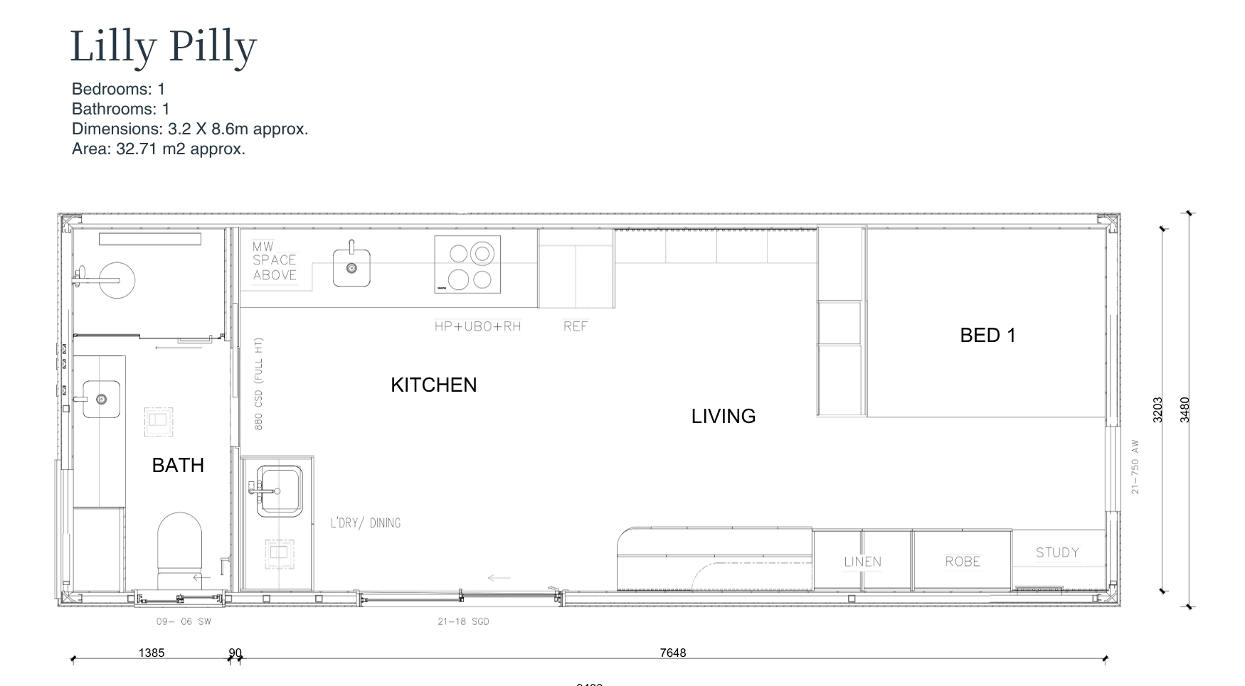
The Lilly Pilly is a clever 1 bedroom, 1 bathroom modular home designed for simple, stress-free living. At 32.9m² (3.2m x 8.6m), it offers everything you need in a streamlined footprint, making it perfect as a granny flat, guest suite, or independent retreat.
With high quality finishes and full building regulation compliance, the Lilly Pilly delivers modern living spaces.

3.2 m

8.6 m

2.4m

32.9m²
1
2
1
No hidden costs. Your quote covers everything from design to installation.
Stage-based payment plans that work with your budget.
Because Knest homes are permanent residences, they qualify for standard bankfinance.
Eligible for government grants in approved states to help you get started sooner
High-quality homes, delivered faster, at a more competitive price than traditional builds.
Take advantage of stamp duty concessions where available, making your homemore affordable.
.jpg)